Compartilhe este texto

Prisão de Temer tem 46m², sofá, TV, ar condicionado, chuveiro elétrico e ‘sala de apoio’

Por Portal Do Holanda

25/03/2019 13h19 — em
Política


Foto: Reprodução

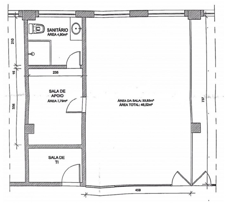
O ex-presidente Michel Temer (MDB), preso na Operação Descontaminação, na quinta-feira, 21, está acomodado em uma sala de 46,52m2 na Superintendência da Polícia Federal no Rio. A Operação Lava Jato afirma que o emedebista lidera um esquema que teria se beneficiado ou recebido promessa de R$ 1,8 bilhão em propina durante 40 anos. A investigação apontou que Temer teria sido beneficiário de R$ 1 milhão da construção da Usina de Angra 3, obra pivô de sua prisão.

O local onde o ex-presidente está preso é composto por uma sala com 33,83m², uma sala de apoio de 7,79m² e um banheiro de 4,9m². A acomodação é climatizada com ar condicionado central, tem sofá, mesa, televisão, cadeiras e chuveiro elétrico.

As informações sobre as condições de Temer na PF foram comunicadas pela Procuradoria Regional da República da 2.ª Região (PRR-2) ao desembargador Ivan Athié, do Tribunal Regional Federal da 2.ª Região (TRF-2), relator do habeas corpus de Temer.

A Procuradoria enviou ao magistrado um croquis das dependências onde Temer se encontra. Nesta quarta, 27, o tribunal vai julgar o pedido da defesa do ex-presidente.

Temer está preso na PF por decisão do juiz Marcelo Bretas, da 7.ª Vara Federal do Rio. O magistrado atendeu a um pedido da defesa do ex-presidente. O Ministério Público Federal havia solicitado que o emedebista ficasse custodiado na Unidade Prisional da Polícia Militar do Estado, em Niterói, onde estão outros investigados da Operação Descontaminação, como o coronel João Baptista Lima Filho e o ex-ministro Moreira Franco.

“A despeito da manifestação do Ministério Público Federal, que reiterou o requerimento anterior, para que o investigado Michel Temer fique custodiado na Unidade Prisional da Polícia Militar do Estado do Rio de Janeiro, entendo que o tratamento dado aos ex-presidentes deve ser isonômico, uma vez que o ex-presidente Lula está custodiado na Superintendência da Polícia Federal em Curitiba”, ponderou Bretas, na ocasião.

O juiz destacou que a Superintendência da PF no Rio informou a ele que ‘tem condições’ de custodiar Temer. “Defiro o requerimento de fls. 5559/5560, para que o investigado preso Michel Miguel Elias Temer Lulia fique custodiado na sede da Superintendência da Polícia Federal no Rio de Janeiro.”

Também foram presos na Descontaminação o ex-ministro Moreira Franco (Minas Energia), o coronel reformado da Polícia Militar João Baptista Lima Filho – o coronel Lima -, sua mulher de Maria Rita Fratezi, os empresários Carlos Alberto Costa, Carlos Alberto Costa Filho, Vanderlei de Natale e Carlos Alberto Montenegro Gallo. Alvos de prisões temporárias, Rodrigo Castro Alves Neves e Carlos Jorge Zimmermann foram soltos pela desembargadora Simone Schreiber, plantonista do Tribunal Regional Federal da 2ª Região.

Entenda a investigação contra Temer

A ação que prendeu Temer e seus aliados é decorrente da Operação Radioatividade, que mirou um esquema de cartel, corrupção ativa e passiva, lavagem de capitais e fraudes à licitação que atuou na construção da usina nuclear de Angra 3.

A nova investigação apura pagamentos ilícitos feitos por determinação do empreiteiro José Antunes Sobrinho, ligado à Engevix, para ‘o grupo criminoso liderado por Michel Temer, bem como de possíveis desvios de recursos da Eletronuclear para empresas indicadas pelo referido grupo’.

A Lava Jato identificou um ‘sofisticado esquema criminoso para pagamento de propina na contratação das empresas Argeplan, AF Consult Ltd e Engevix para a execução do contrato de projeto de engenharia eletromecânico 01, da usina nuclear de Angra 3’.

O Ministério Público Federal afirmou que a Argeplan, de coronel Lima, ‘participou do consórcio da AF Consult LTD, vencedor da licitação para a obra da Usina Nuclear de Angra 3, apenas para repassar valores a Michel Temer’.

Segundo a Procuradoria, a AF Consult do Brasil e a Argeplan não tinham pessoal e expertise suficientes para a realização dos serviços, e, por isso, houve a subcontratação da Engevix. No curso do contrato, conforme a investigação, coronel Lima solicitou ao sócio da empresa Engevix o pagamento de propina, em benefício de Michel Temer.

A Lava Jato destaca que a propina foi paga no final de 2014 com transferências totalizando R$ 1,91 milhão da empresa da Alumi Publicidades para a empresa PDA Projeto e Direção Arquitetônica, controlada pelo coronel Lima.

Para justificar as transferências de valores foram simulados contratos de prestação de serviços da empresa PDA para a empresa Alumi.

O empresário que pagou a propina afirma ter prestado contas de tal pagamento para o coronel Lima e para Moreira Franco.

As investigações apontaram que os pagamentos feitos à empresa AF Consult do Brasil ensejaram o desvio de R$ 10,859 milhões, ‘tendo em vista que a referida empresa não possuía capacidade técnica, nem pessoal para a prestação dos serviços para os quais foi contratada’.

De acordo com a Lava Jato, o esquema ‘praticou diversos crimes envolvendo variados órgãos públicos e empresas estatais, tendo sido prometido, pago ou desviado para o grupo mais de R$ 1,8 bilhão.

A investigação aponta que diversas pessoas físicas e jurídicas usadas de maneira interposta na rede de lavagem de ativos de Michel Temer continuam recebendo e movimentando valores ilícitos, além de permanecerem ocultando valores, inclusive no exterior.

Os procuradores afirmam que ‘quase todos os atos comprados por meio de propina continuam em vigência e muitos dos valores prometidos como propina seguem pendentes de pagamento ao longo dos próximos anos’.

Segundo a força-tarefa, as apurações também indicaram uma espécie de braço da organização, especializado em atos de contrainteligência, a fim de dificultar as investigações, tais como o monitoramento das investigações e dos investigadores, a combinação de versões entre os investigados e, inclusive, seus subordinados, e a produção de documentos forjados para despistar o estado atual das investigações.

O Ministério Público Federal requereu a prisão preventiva de alguns dos investigados, pois, todos esses fatos somados apontam para a existência de uma organização criminosa em plena operação, envolvida em atos concretos de clara gravidade.

COM A PALAVRA, O CRIMINALISTA ANTONIO CLAUDIO MARIZ DE OLIVEIRA

“A decretação da prisão preventiva de Michel Temer surpreendeu o mundo jurídico e a sociedade brasileira com certeza tendo em vista a sua flagrante desnecessidade. Não se tem conhecimento de nenhum fato que autorizasse essa medida de força uma vez que Michel Temer, desde que saiu da Presidência está, como sempre esteve, pronto a responder a qualquer intimação da Justiça ou da polícia, não tendo sido, no entanto, procurado por nenhuma autoridade policial ou judiciária.”

O presidente estava levando uma vida de inteiro conhecimento público, diariamente em seu escritório e em sua casa à noite. Não estava programando nenhuma viagem, estando, portanto, isento de qualquer medida que cerceasse a sua liberdade. Por tais razões sua prisão nos parece absolutamente desnecessária.”

COM A PALAVRA, O ADVOGADO EDUARDO CARNELÓS, QUE DEFENDE MICHEL TEMER

O advogado Eduardo Carnelós, que defende Michel Temer, afirmou que a prisão do ex-presidente ‘é uma barbaridade’.

A prisão do ex-Presidente Michel Temer, que se deu hoje, constitui mais um, e dos mais graves!, atentados ao Estado Democrático e de Direito no Brasil.

Os fatos objeto da investigação foram relatados por delator, e remontam ao longínquo 1° semestre de 2014. Dos termos da própria decisão que determinou a prisão, extrai-se a inexistência de nenhum elemento de prova comprobatório da palavra do delator, sendo certo que este próprio nada apresentou que pudesse autorizar a ingerência de Temer naqueles fatos.

Aliás, tais fatos são também objeto de requerimento feito pela Procuradora-Geral da República ao STF, e o deferimento dele pelo Ministro Roberto Barroso, para determinar instauração de inquérito para apurá-los, é objeto de agravo interposto pela Defesa, o qual ainda não foi julgado pelo Supremo.

Resta evidente a total falta de fundamento para a prisão decretada, a qual serve apenas à exibição do ex-Presidente como troféu aos que, a pretexto de combater a corrupção, escanecem das regras básicas inscritas na Constituição da República e na legislação ordinária.

O Poder Judiciário, contudo, por suas instâncias recursais, haverá de, novamente, rechaçar tamanho acinte.

Eduardo Pizarro Carnelós

COM A PALAVRA, MAURÍCIO SILVA LEITE, QUE DEFENDE O CORONEL LIMA

O advogado Maurício Silva Leite, defensor de João Baptista Lima Filho, declarou estar perplexo com a prisão decretada. Segundo o advogado, ‘a própria Procuradoria-Geral da República manifestou-se em relação aos mesmos fatos e concluiu que não havia elementos para a prisão do meu cliente. Surpreendentemente, 2 meses depois, contrariando o entendimento da PGR, a prisão é decretada pela 1ª instância, sem a existência de nenhum fato novo”.

COM A PALAVRA, O ADVOGADO ANTÔNIO SÉRGIO MORAES PITOMBO, QUE DEFENDE MOREIRA FRANCO

“A defesa de Wellington Moreira Franco vem manifestar inconformidade com o decreto de prisão cautelar. Afinal, ele encontra-se em lugar sabido, manifestou estar à disposição nas investigações em curso, prestou depoimentos e se defendeu por escrito quando necessário. Causa estranheza o decreto de prisão vir de juiz de direito cuja competência não se encontra ainda firmada, em procedimento desconhecido até aqui.”

COM A PALAVRA, O MDB

NOTA DO MDB

O MDB lamenta a postura açodada da Justiça à revelia do andamento de um inquérito em que foi demonstrado que não há irregularidade por parte do ex-presidente da República, Michel Temer e do ex-ministro Moreira Franco. O MDB espera que a Justiça restabeleça as liberdades individuais, a presunção de inocência, o direito ao contraditório e o direito de defesa.

COM A PALAVRA, O ADVOGADO FERNANDO JOSÉ DA COSTA, QUE DEFENDE VANDERLEI DE NATALE

Após a surpreendente decretação da prisão de Vanderlei De Natale, seu advogado Fernando José da Costa vem a público afirmar que se trata de uma prisão ilegal, que não vincula Vanderlei aos fatos apurados no Rio de Janeiro. Sua empresa está sediada em São Paulo e jamais prestou serviços para a Eletronuclear, objeto da presente investigação.

COM A PALAVRA, AF CONSULT

Nota oficial do Grupo ÅF Consult

A ÅF não vai comentar as investigações em andamento.

Entretanto, esclarece que o grupo empresarial ÅF Consult tem 123 anos de existência e escritórios em mais de 30 países. Ao longo dessa trajetória de sucesso, já desenvolveu trabalhos de excelência em 100 países nas áreas de energia, indústria e infraestrutura. Conta atualmente com 10 mil empregados e faturamento líquido anual de R$ 4,5 bilhões. Com sede na Escandinávia, a AF Consult tem um histórico de lisura desde 1895, quando foi criada na Suécia por industriais do setor energético.

A participação da ÅF Consult na elaboração de projeto de engenharia para o reator da usina nuclear Angra 3 é comprovada e respaldada em contrato decorrente de processo licitatório vencido pelo grupo, superando três empresas internacionais concorrentes.

Auditorias independentes do Tribunal de Contas da União e contratadas pela Eletronuclear descartaram qualquer indício de irregularidades no contrato.

A conduta ética e profissional da AF Consult é reconhecida internacionalmente. A AF não compactua com irregularidades e suas práticas estão

em conformidade com as mais elevados padrões de comportamento empresarial e de compliance..”

COM A PALAVRA, A DEFESA DE CARLOS ALBERTO COSTA

Alexandre Sinigallia e Paola Forzenigo, advogados de Carlos Alberto Costa, manifestaram absoluta indignação em relação à medida repressiva. “A desnecessidade de prisão de nosso cliente já foi atestada pela própria Procuradoria Geral da República, órgão máximo de persecução penal, em manifestação apresentada ao Supremo Tribunal Federal em dezembro do ano passado. Nenhum fato novo surgiu e, mesmo assim, o Juízo de 1º Grau absurdamente reaviva a questão, demonstrando sanha punitiva desproporcional e inacreditavelmente desnecessária”.


Siga-nos no
O Portal do Holanda foi fundado em 14 de novembro de 2005. Primeiramente com uma coluna, que levou o nome de seu fundador, o jornalista Raimundo de Holanda. Depois passou para Blog do Holanda e por último Portal do Holanda. Foi um dos primeiros sítios de internet no Estado do Amazonas. É auditado pelo IVC e ComScore.

ASSUNTOS: michel temer, prisão de Temer, rio de janeiro, Política

+ Política